-
- Tổng tiền thanh toán:

Chiều cao chậu rửa mặt tiêu chuẩn hiện nay
Chậu rửa mặt hay còn gọi là chậu lavabo là thiết bị vệ sinh không thể thiếu trong các phòng tắm hiện đại. Thiết kế của chậu rửa mặt với phần trên là chậu rửa, phía dưới sẽ là xi phông thoát nước và vòi chậu được gắn phía trên. Khi lựa chọn chậu lavabo khách hàng cần tìm hiểu kĩ về các kích thước và chiều cao chậu rửa mặt khi lắp đặt chậu để phù hợp với không gian nhà tắm. Hãy cùng Showroom Đăng Nguyên tìm hiểu về chiều cao chậu rửa mặt trong bài viết dưới đây.
Vì sao cần xác định chiều cao lavabo
Khi bạn nắm được thông số về chiều cao của chậu rửa mặt bạn có thể:
-
Dễ dàng ước tính sử dụng sản phẩm chậu rửa nào cho phù hợp với không gian và diện tích nhà vệ sinh.
-
Tùy vào các thành viên trong gia đình để lựa chọn độ cao chậu rửa cho phù hợp.
-
Tránh được việc mất thêm chi phí, đổi trả sản phẩm nhiều lần và có thể lắp đặt dễ dàng và chính xác khi đã xác định được chiều cao của chậu rửa.
-
Chiều cao bồn rửa mặt hợp lý, hài hòa với không gian giúp đem lại tính thẩm mỹ cho phòng tắm, nhà vệ sinh và các không gian xung quanh.
Chiều cao lavabo tiêu chuẩn theo đối tượng sử dụng
Chiều cao chậu lavabo tiêu chuẩn được xác định dựa trên chiều cao của người sử dụng, giúp đảm bảo việc thuận tiện trong quá trình sinh hoạt.
-
Với những người chiều cao khoảng 1m75 trở xuống, chiều cao của chậu rửa mặt khoảng 800mm (tính từ mặt lavabo đến mặt đất).
-
Với những người chiều cao từ 1m75 trở lên thì chiều cao của chậu lavabo khoảng 850mm - 900mm.
Tuy nhiên, đối với những gia đình có 2-3 thế hệ sống chung, rất khó để áp dụng công thức trên. Do vậy, tuỳ từng đối tượng sử dụng trong nhà bạn sẽ lắp chiều cao lavabo cho mỗi phòng tắm sẽ khác nhau. Đặc biệt với gia đình có trẻ em thì chiều cao chậu lavabo khoảng 500 - 600mm sẽ phù hợp để trẻ có thể thao tác và sử dụng dễ dàng hơn.
Chiều cao lavabo tiêu chuẩn theo kiểu dáng sản phẩm
Ngày nay, chậu rửa lavabo rất đa dạng về mẫu mã, thiết kế, kiểu dáng và kích thước sản phẩm. Do vậy, chiều cao chậu lavabo khi lắp đặt cũng sẽ phụ thuộc rất nhiều vào kiểu dáng của sản phẩm.
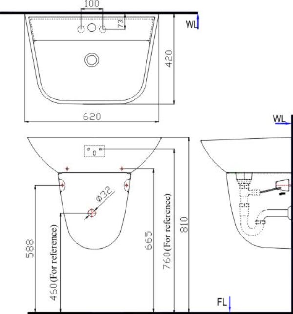
Chiều cao của chậu rửa mặt treo tường
Chậu rửa mặt treo tường là mẫu thiết bị vệ sinh truyền thống và được sử dụng hết sức phổ biến trong phòng tắm hiện nay. Với thiết kế nhỏ gọn phù hợp với tất cả các không gian, thậm chí kể cả những phòng tắm, nhà vệ sinh nhỏ nhất. Về kích thước của chậu rửa mặt treo tường tiêu chuẩn như sau:
-
Chiều cao chậu rửa khoảng 150 – 220mm
-
Chiều cao gắn ống xả chờ âm tường tính từ sàn hoàn thiện lên đến tim lỗ co răng trong là 510mm
-
Chiều cao gắn ống cấp nước lạnh và nóng chờ âm tường tính từ sàn hoàn thiện lên đến tim lỗ co đồng d = 21 ren ngoài là 620mm
-
Chiều dài chậu rửa treo tường khoảng 400 – 500mm
-
Chiều rộng chậu rửa treo tường khoảng 350 – 430mm

Kích thước chậu treo tường thông dụng
Kích thước chậu treo tường của hãng Inax L-283V: 162 x 429 x390mm.
Kích thước chậu treo tường của hãng Inax L-280V: 150 x 400 x322 mm.
Kích thước lchậu treo tường của hãng Inax L-282V: 180 x 400 x410 mm.
Kích thước chậu treo tường của hãng Toto LT236CS: 210x530x465mm.
Kích thước chậu treo tường của hãng Toto LT210CTR: 220 x 500x400mm.
Kích thước chậu treo tường của hãng Toto LT300C/LT300CM: 190x 430 x500mm.
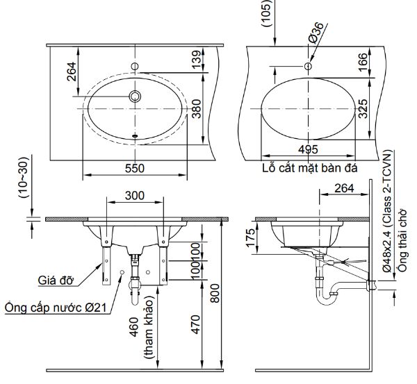
Chiều cao chậu rửa mặt âm bàn
Chậu rửa âm bàn được thiết kế với phần lòng chậu nằm chìm xuống mặt bàn một cách thẩm mỹ, tạo nên không gian hiện đại cho phòng tắm. Hiện có 2 loại chậu âm bàn là chậu âm bàn toàn phần và chậu âm bàn dương vành. Chậu rửa mặt âm bàn phù hợp với nhiều không gian phòng tắm, nhưng thích hợp nhất vẫn là các phòng tắm có không gian rộng rãi, thông thoáng. Thường những sản phẩm như, lavabo âm bán đá sẽ sở hữu hình vuông hoặc hình tròn, chất liệu bằng sứ. Về kích thước chiều cao bồn rửa mặt tiêu chuẩn như sau:
-
Chiều dài lavabo âm bàn khoảng 550 – 600mm
-
Chiều rộng lavabo âm bàn khoảng 380 – 450mm
-
Chiều cao bàn đá đặt lavabo âm bàn khoảng từ 175 – 210mm
-
Chiều cao gắn ống xả âm tường tính từ sàn lên đến lỗ co răng trong là 500mm
-
Chiều cao gắn ống nước âm tường tính từ sàn lên đến lỗ co đồng d=21, ren ngoài là 620mm.

Kích thước Lavabo âm bàn thông dụng
Kích thước lavabo âm bàn Toto LT546: 550×400.
Kích thước lavabo âm bàn Inax AL-2094V: 589x515x190mm.
Kích thước lavabo âm bàn Inax AL-2298V: 550x400x210mm.
Kích thước lavabo âm bàn Inax L-2216V: 550x380x175mm.
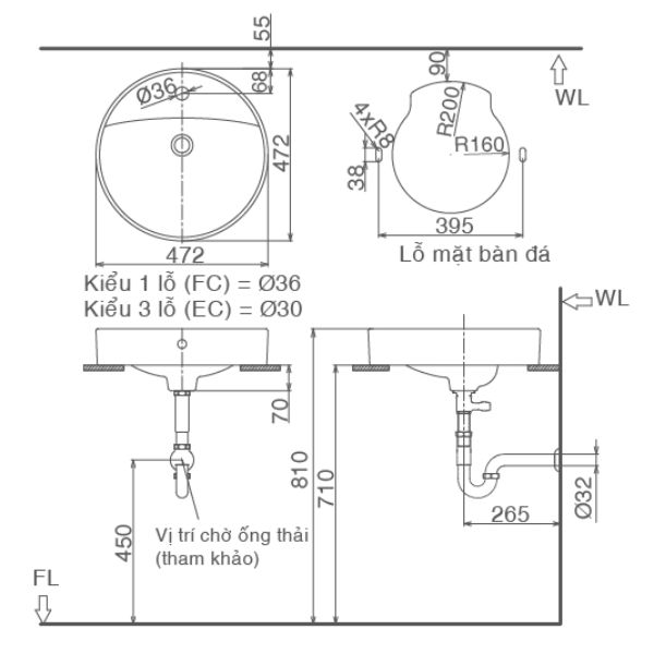
Chiều cao chậu rửa mặt đặt bàn
Sự ra đời của chậu rửa mặt đặt bàn (dương bàn) đã mang đến một luồng gió mới trong việc thiết kế không gian phòng tắm. Với các thiết kế hiện đại, trẻ trung, đa dạng và có thể là điểm nhấn cho phòng tắm, chậu rửa dương bàn được người tiêu dùng rất ưa chuộng. Phần mặt bàn còn lại có thể tận dụng để trang trí hoặc để các đồ vệ sinh cá nhân.
Chiều cao chậu đặt bàn tiêu chuẩn sẽ là:
-
Chiều dài lavabo đặt bàn khoảng 400 - 600mm
-
Chiều rộng lavabo đặt bàn khoảng 380 - 450mm
-
Chiều cao lavabo đặt bàn khoảng 70 - 180mm
-
Chiều cao gắn ống xả âm tường tính từ sàn lên đến lỗ co đồng d=21, răn ngoài là 620mm.

Kích thước chậu đặt bàn thông dụng nhất
Kích thước chậu đặt bàn Toto LT4706: 600x420x90mm.
Kích thước chậu đặt bàn Toto LT4716: 600x380x70mm.
Kích thước chậu đặt bàn Inax AL-296V: 570x450x180mm.
Kích thước chậu đặt bàn Inax L-296V: 570x450x180mm.
Kích thước chậu đặt bàn Inax GL-445V: 450x450x165mm.
Lưu ý khi lắp và sử dụng chậu lavabo rửa mặt
Để đảm bảo sự thuận tiện trong sinh hoạt hàng ngày, tránh các sự cố phát sinh và tăng độ bền cho sản phẩm, bạn cần lưu ý về việc lắp đặt và sử dụng chậu rửa mặt như sau:
-
Trước khi lắp đặt: Nghiên cứu kỹ càng về ưu nhược điểm của các loại chậu rửa mặt. Lựa chọn kiểu dáng, kích thước và chiều cao của chậu lavabo để phù hợp với tình hinh thực tế nhà vệ sinh và nhu cầu sử dụng của từng thành viên trong gia đình. Để đảm bảo về chất lượng và sử dụng được lâu dài, bạn nên chọn các thương hiệu vệ sinh uy tín trên thị trường như Toto, Inax… Xác định trước các vị trí lắp đặt, kiểm tra kĩ càng các phụ kiện đi kèm chậu rửa mặt trước khi lắp.
-
Trong khi lắp đặt: Trang bị đầy đủ các dụng cụ lắp đặt, đọc kĩ hướng dẫn sử dụng lắp đặt của nhà sản xuất. Không nên dùng lực quá mạnh dẫn đến tình trạng hư hỏng hoặc nứt vỡ thiết bị, phụ kiện trong quá trình lắp đặt.
-
Sau khi lắp đặt: Xả thử nước, kiểm tra kỹ càng các vị trí vặn ốc hoặc xi phông xem có bị rò rỉ hay không. Trong khi sử dụng cần thường xuyên bảo quản và vệ sinh thiết bị, tránh làm rơi các dị vật xuống đường ống thoát dẫn đến bị tắc.
Hi vọng qua bài viết trên, các bạn có thể lựa chọn cho mình sản phẩm chậu rửa mặt với chiều cao phù hợp cho gia đình. Nếu bạn còn các vấn đề thắc mắc về lựa chọn chiều cao chậu rửa mặt bạn có thể liên hệ với Showroom Đăng Nguyên qua số hotline 096.954.9889 để có thể hỗ trợ một cách hiệu quả.
Liên hệ:
Hotline1 : 0969.549.889
Hotline 2: 024.6686.9839
Facebook: https://www.facebook.com/showroomdangnguyenhn/
Email: showroomdangnguyen@gmail.com
Hà Nội:
SHOWROOM HÀ NỘI: 12-B2 Shophouse 24H, Đường Tố Hữu, Phường Vạn Phúc, Quận Hà Đông
VĂN PHÒNG ĐẠI DIỆN: 16A Lý Nam Đế, Phường Hàng Mã, Quận Hoàn Kiếm
Thanh Hóa:
SHOWROOM THANH HÓA 1: 74 Đinh Công Tráng, Phường Ba Đình
SHOWROOM THANH HÓA 2: 104 Đinh Công Tráng, Phường Ba Đình
SHOWROOM THANH HÓA 3: HH9-56 Đại lộ Châu u, Vinhomes Star City
VĂN PHÒNG THANH HÓA: Lô CC1, Khu Công Nghiệp Tây Bắc Ga, Phường Đông Thọ
KHUYẾN MẠI
LIÊN HỆ TƯ VẤN
HỆ THỐNG CỬA HÀNG